DUNEHOUSE
Private house, or rather a multifunctional complex villa was successfully realized by us in collaboration with our respected client. This object is filled with deep content and new understanding of time and life. The house is not only a box for living, but a footprint to the future. Our style or approach looks minimalistic and might be called functional constructivism. We tried to make it as simple and reliable as possible, working with proportions, details, textures and materials. Light and air were the most important factors influencing the architectural concept.
In the morning it must be the sun in the bedroom and when you will open the window you should see a forest and smell a blooming lilac. The kitchen is also supposed to be for the morning sun. However the terrace and the hall for the day or evening hours. You need to create a certain scenario of life in such a space as a house. And only then the walls appear . Nature not only surrounds the house, but also becomes a part of the interior and later enters the space. In the architectural vocabulary, we have such a thing as a "genius of the place". This means that you must feel and understand what can be built in this place, what kind of structure to have and how it should look like.

Almost everything that we do in our lives from the perspective of good is for the house and family. But it is always not enough time to think about that kind of house we want and how it needs to be. Layers of stamps and stereotypes bring us to the standard solutions.
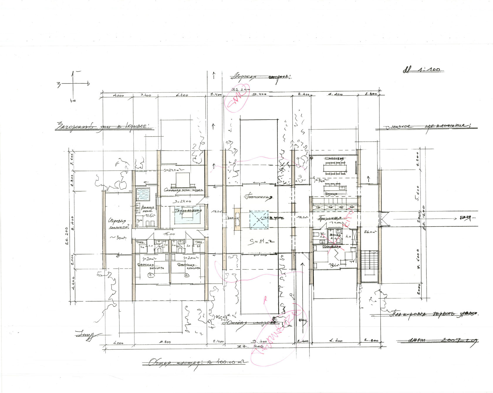
1200 square meter private villa was specially designed for the episodic stays. This space is supposed to become a representative house for the receptions and recreation of the guests at one of the most ecologically clean places in Europe. This place is located 60 km from the Riga at Klapkaciems , the capital of Latvia, on the coastal area near the Golf of the Riga. The complex of the buildings is placed on the 3.5 meter high dunes almost 150 meters from the water.

Two parts of the complex, the main residential building and the spa block with a swimming pool, is one level building placed on the two dunes and connected by the glazed passage. Technical and subsidiary rooms are located in the basement of the building. Building foundations are constructed very specifically and take into account that there can be strong vibrations and shifts of the dunes during the large storm. Several parts of the building, the main living block, passage and the spa area are connected with movable construction joints. It will extinguish tension that can appear during the specific weather conditions when a strong wind and wave strikes on the dune.
The house fully opened/glazed to the north with the view to the sea and to the forest on the south. The newsies technologies and construction solutions have been applied to ensure the best stability to the large glazed surfaces.

The house looks as a fortress from the outside, but opposite when you are inside it feels light and airy. There are separate exits to the terraces from each of the rooms just through the sliding doors/surfaces.It is 40 meters view gorizont from the swimming pool area point till the fireplace located center of the living room area. At the same time the sea and forest become a part of the house interior that gives a strong and unique connection to nature.

It is special technology to create, design and construct these types of houses. It is required involvement of the best high-class specialists with unique abilities, backgrounds and work experience. Any errors are not allowed and everything is interconnected.

Minimalistic aesthetics and natural materials used in the decoration of the building are harmoniously combined with the ascetic nature of the Baltic seashore. It keeps the test of time perfectly and the full building is aging beautifully.

The walls made from the Saaremsky dolomite eventually will become sandy white and will give the feeling that it was made of sand. The nobility of natural shades materials, that was used during the project implementation, creates a vision of the stable and expensive house.
The Baltic seashore with the ever-changing views... and the house as a fortpost on the shore become a guard ... emerging from the white sands of the coastal dunes …
This site was made on Tilda — a website builder that helps to create a website without any code
Create a website